重磅!蚌埠老城核心商圈又添新势力,皖北第一高楼项目落户!
指导
说到逛街,很多蚌埠人,尤其是老蚌埠人,首先想到的是淮河路商圈,一条马路。 几条巷子,蚌埠百货、南山宾馆、蚌埠饭店……这些既是蚌埠商业繁荣的见证,也是人们记忆中的车水马龙。
不过近年来,随着蚌埠万达广场、宝龙广场等新型城市综合体的不断涌现。 淮河路商圈的影响力受到挑战。
不久的将来,位于淮河路商圈的一些楼盘将为其添砖加瓦,甚至有可能成为蚌埠的新地标。
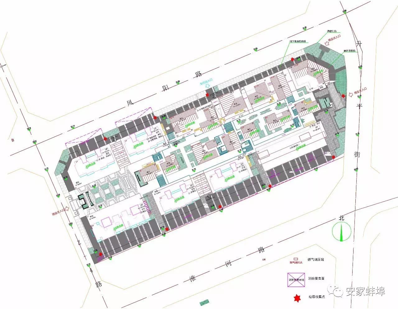
托吉定元里
继2月高价拿下蚌埠渔汇区花鼓灯嘉年华旁住宅用地后,拓基地产又传来喜讯。 沱沱第五城“沱沱定远里”已经规划完毕,在一石小胖旁边新建一个项目。
托基定元里位于淮河路以北,升平街以西,凤阳路以南。 项目占地面积约26340㎡,总建筑面积约133519.14㎡(含地下建筑面积),总投资约8.2亿元,可容纳1020户居民入住。
从规划图来看蚌埠天洋国际大厦,该项目是拓济地产建设蚌埠的第五家子公司。 旗下产品属于高端精工系列——鼎源系列,由特色商业风情街、高层住宅、公寓、写字楼等组成。项目位于淮河路商圈,仅500米距淮河,距一石峡约1公里。 交通便利,商业繁荣,具有很高的开发价值。 据悉,该地块开发需要建设部分安置房,将用于榜山区回购。
天洋国际
位于淮河路中段北侧,中山大街西侧,淮河路商圈。 这里是繁华地段,热闹地段,蚌埠百货、南山宾馆、天洋新世纪购物中心、百大名牌中心、百汇国际购物中心、成龙影院、KTV……只需5分钟即可到达。 享受繁华时尚的都市生活,这就是天洋国际大厦。
5分钟远离繁华生活
蚌埠是一座休闲生活大城,主要吃喝玩乐都集中在淮河路百货大楼附近。 现在蚌埠的大部分房地产都在郊区开发。 虽然自然环境较好,但出行和购物相对不方便。 同时,夜幕降临,郊区往往人烟稀少,老人和孩子傍晚出行可能会比较危险。
天洋国际大厦位于淮河中路,一直以来都是人流量大的区域。 周边有大量的商场和酒店,购物和聚会都非常方便。 晚上这里不会像郊区那么冷清,节假日这里会人头攒动,热闹非凡。 城市的夜生活就在您家门口。
中城·国际广场
中城国际广场项目由中城建六局集团与中恒集团共同开发,总建筑面积63万平方米。 是目前淮河路中央商务区投资最大、规模最大、配套最齐全的高端商业综合体。
中城·国际项目以青年街和凤阳路分为4个地块。 目前,A、B、D三个地块已在环境影响报告书中公示,地块的详细数据也首次公开。 项目效果图同时曝光,包括商业、办公、休闲、住宅、公共服务等多种建筑类型。 水街!
望怀名城
2016年5月18日,蚌埠天行置业有限公司以总价3.188亿元竞得位于渝汇区滨河西片区的三幅地块,用于建设望怀城,总成交面积为约152亩。 据了解,位于望怀名城旁的金纬西城官地,原由蚌埠市金纬房地产开发有限公司开发,项目于2012年9月开工,原定于2014年5月31日交付。兑现。 2016年,蚌埠天行地产成功收购了金威西城官地所在的滨河西片区三块地块,整合开发了滨河西新区,同时也接手了金威西城官地的后续开发。 望怀名城项目或于今年5月开工建设,售楼部预计8月正式对外开放。
蚌埠新地标
蚌埠新地标出现! 皖北第一高楼项目将开工,高201米,呈“帆船”形。 项目介绍: 据悉,该楼为汇金广场二期项目6号楼,位于中山街与凤阳西路交汇处。 计划于今年8月开工建设,24个月内完工。
该建筑是一栋“帆船”造型的超高层商业公寓。 整栋楼高约53层,住户1200户,配备车库14000平方米。
帆船楼建成后将成为皖北第一高楼,成为点亮淮河天际线的一颗明珠。 坐拥老城核心区,是集商业广场、SOHO办公、居住、文化、休闲于一体的综合性城市地标。
长期以来,商业区在城市发展中始终占据重要地位,自然而然成为人们聚集的重点区域。 淮河路步行街位于蚌埠市中心蚌埠天洋国际大厦,与蚌埠最重要的东西主干道并列,可见其重要的商业地位。 随着新的商业综合体的加入,也为这个传统商圈增添了新的活力,为市民带来了高品质的生活,也是城市进步的标志。 蚌埠市民也将见证老城的蜕变。 新城历史性时刻!
安家小生电话/微信18256515120
后台回复“买房”报名买房额外优惠
后台回复“装修”报名装修,享额外优惠
文章声明:以上内容如有侵权,请联系删除。http://app.7201.com.cn/2023/02/273/














还没有评论,来说两句吧...